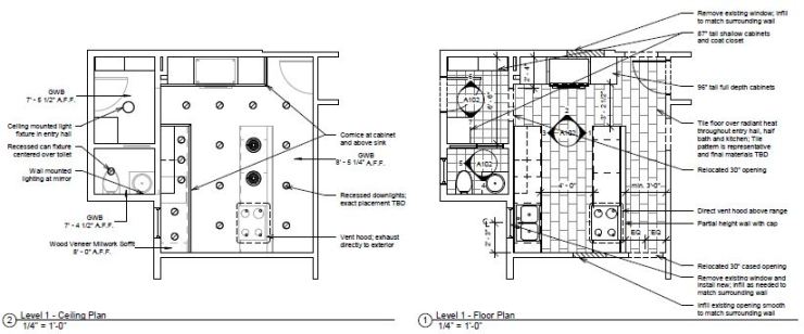
The existing kitchen was cramped and, with at least one doorway on each wall, options for storage and contiguous counter space were severely limited. By shifting the passage to the formal dining room and transforming the tight u-shaped kitchen into a galley style kitchen, the proposed layout separates passage from use and creates a more efficient and spacious work space. During construction, the client decided to open up the wall between the kitchen and dining room, opening the space up further. In addition to the changes in the kitchen, an oversized half bath was made smaller to accommodate additional storage near the back door.




Project Responsibilities: Space Planning; Permit Drawings
Contractor: Kerry Construction
Completed: Summer 2017
